home
curriculum
progetti
apporticritici
bibliografia

Progetti

1987
Edificio Direzionale (sede Banca d'Italia e IBM) e Centro sportivo pubblico in corso Sempione
Roma

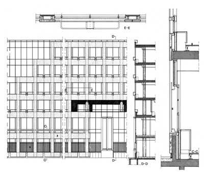
Nella vasta area di una ex concessionaria FIAT al centro di Milano, tra Corso Sempione, il tracciato del Passante e il Velodromo Vigorelli, viene realizzo un complesso di edilizia terziaria, con un parco e un centro sportivo pubblici quale corrispettivo di oneri di urbanizzazione. Per quest'ultimo un'unica struttura metallica copre i due ambienti della piscina e della palestra, con le relative gradinate. Nella zona direzionale, la fronte sul Corso Sempione era stata intesa parte con la conservazione dei pilastri binati della concessionaria, parte in continuitą con la facciata dell'edificio adiacente. Nello sviluppo del progetto il cromatismo della graniglia, inizialmente previsto su toni chiari, vira verso il bruno e, con una gradonata discendente, si trasforma in curtain wall. Lo stesso viene poi riproposto nell'edificio arretrato di maggiore altezza, salvo riprendere la finitura in graniglia nel corpo basso angolare.


<< indietro


 


Torna all'inizio