home
curriculum
progetti
apporticritici
bibliografia

Progetti

1996-2000
Nuovi spazi di accoglienza per i Musei Vaticani
Roma

Con: Sandro Benedetti, Angelo Molfetta
Collaborazione: Piera Bisignani, Franco Ferlito
Con l’intervento artistico di Cecco Bonanotte per la Porta Nuova

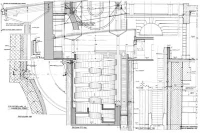
Per rispondere ai nuovi livelli qualitativi dell'universo museale, e al forte aumento di visitatori in corrispondenza dell'Anno Santo del 2000, la Santa Sede si è preoccupata di riorganizzare tutto il sistema di accoglienza e di pre-visita, tra cui gli ingressi e le uscite, il superamento del forte dislivello tra la quota stradale e quella delle principali aree museali, la ristorazione, i servizi in genere, i controlli di sicurezza. In tal senso l'ingresso e l'uscita precedentemente unificati, divengono unicamente uscita, mentre il nuovo accesso viene ricavato al suo fianco, aprendo un nuovo varco nelle antiche Mura. Rimuovendo la terra retrostante, si è creato un complesso su più livelli, ove quello inferiore è di libero accesso, quasi una piazza urbana interna con i servizi di informazione, il book-shop e altro. Il livello intermedio, contiene la biglietteria e l'inizio del percorso di salita, con la a scala mobile e la rampa elicoidale. Al livello superiore ha luogo una grande sala multifunzionale per esposizioni temporanee e altre funzioni, che apre sulla terrazza al livello. Al termine della scala mobile e della rampa si giunge al "Cortile delle Corazze", coperto da una struttura metallica vetrata, circondato dagli antichi edifici ed aperto da un lato verso la Città e dall'altro verso la Cupola di San Pietro. Da questo livello si accede alla Pinacoteca, ai Musei Archeologici ed Etnologici, ai Musei Classici, fino ad iniziare le lunghe gallerie che, attraverso la Biblioteca, portano ai Palazzi Apostolici e alla Cappella Sistina. Inoltre, vengono completati i servizi e le zone di ristoro. Era prevista una grande Sala di collegamento, aperta verso i Giardini e la Cupola conservando il preesistente portico di collegamento, ma che non è stata realizzata.

1996-2000
New Entrance to the Vatican Museums
Rome

The areas in-between the antique perimeter Walls of the Vatican City - where Michelangelo's Bastion and the historic buildings containing the Vatican Museums are located - and the previous entrance to the Museums, have been excavated to create a new large open atrium. In this space a control and information area, a bookshop, a cloakroom, a cafeteria and other spaces have been located. On the above level are situated the ticket office, an escalator, the elevators and the access to a new helicoidal stepped-back pedestrian ramp, having as architectural reference the nearby double helicoidal system of interlocking ramps designed by Antonio Maraini under the suggestion of Pio XI who desired to repeat the motif of St. Patrick's Well in Orvieto. The old monumental and bronze decorated ramps are now used as exit from the Museums. A large glazed space-frame structure covers the historic "Cortile delle Corazze", the confluence space of a series of pedestrian routes between the Museums.


<< indietro


 


Torna all'inizio