home
curriculum
progetti
apporticritici
bibliografia

Progetti

2000-2005
Complesso Parrocchiale dei SS. Martiri di Selva Candida in via di Selva Candida
Roma

Collaborazione: Piero Gandolfi, Alessandro Centonze
Progettazione strutture: Antonio Michetti
Progettazione impianti: Mario Perrone
Consulenza liturgica: Padre Silvano Maggioni (Maggiani)
Con Cecco Bonanotte per le sculture

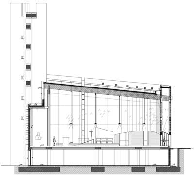
Progetto vincitore di un concorso bandito dalla Conferenza Episcopale Italiana per tre chiese parrocchiali. La presente a Roma, in località Selva Candida, nei pressi del Raccordo Anulare e di via Boccea. Il complesso si staglia da lontano con il campanile in cemento a forma di Y, e la parete circolare in mattoni dell'aula, con una "palpebra" vetrata in basso. Per accedere alla Chiesa dal quartiere si attraversa un corpo di fabbrica molto semplice simile al modello residenziale circostante, per entrare in una corte porticata, come un chiostro conventuale. Da lì si accede all'aula principale, il cui asse è inclinato rispetto alla modulazione del complesso; coperta di travi in legno lamellare, con la fronte caratterizzata dal trave reticolare e dai corpi sporgenti del Battistero e della Penitenzeria. All'interno una galleria ubicata subito dopo il portale d'ingresso completa l'anello rettangolare del porticato. L'importante decorazione scultorea prevista nel progetto di concorso, lungo la parete curva, non si è potuta realizzare nella fase attuativa.


<< indietro


 


Torna all'inizio